电影天堂

 首 页  电影天堂概况   本科教育  研究生教育  继续教育  科研与服务  认证评估  师资队伍  党群工作  学生工作  办事指南  数字展厅  ENGLISH 
电影天堂
当前位置: 首 页 > 数字展厅 > 学生作品 > 毕业设计 > 正文
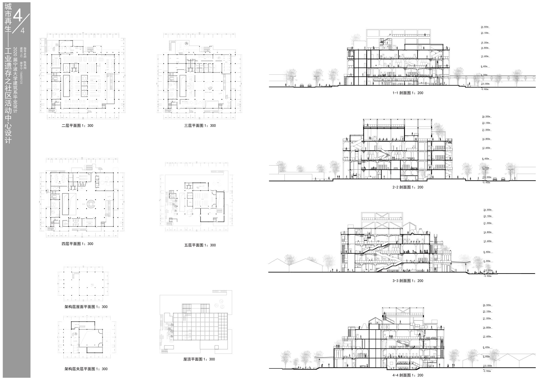
2020届建筑系优秀毕业学生娄宇宁设计图纸
2024-04-30 15:15     (点击次数:)


关闭窗口
关于我们 | 联系我们 | 网站地图

版权所有:电影天堂-电影天堂高清资源
NO. 616 Fenghua Road, Jiangbei District, Ningbo, Zhejiang Province, China 315211
电话/Tel:+86 574 87609558, 邮箱: dyttvip.net